
920 € ** charges comprises
13180 - Gignac la Nerthe
Ref : 1003P13L
Informations générales
- ref : 1003P13L
- Surface habitable :27 m2
- Surface carrez : 27 m2
- Nombre d'étage : 0
- Année de construction : 2018
- Climatisation
- Four
- Lave vaisselle
- Micro onde
Descriptif
a LOUER ? Local professionnel 27 m² ? Gignac-la-Nerthe
Installez votre activité au coeur d'un pôle de santé moderne, entouré d'espaces verts et disposant de stationnements facilitant l'accueil de votre patientèle.
L'agence PEPS'IMMO met à votre disposition un espace fonctionnel et confortable, comprenant notamment une salle d'attente, une salle de repos et un accès conforme aux normes PMR.
Réservé exclusivement aux professions médicales et paramédicales.
Disponibilité : début avril.
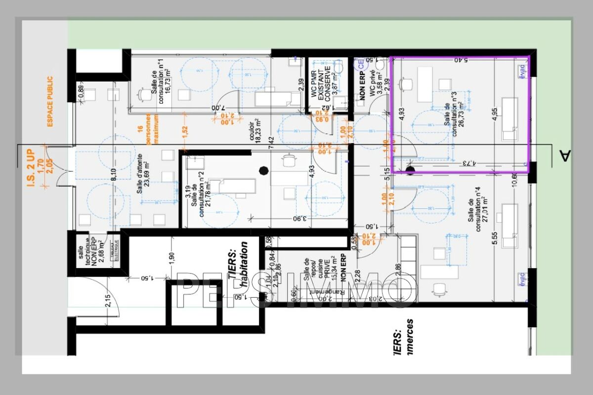
Le local proposé est identifié par un encadrement violet sur le plan annexé.
Les atouts du bien :
Superficie : 27 m²
Local neuf situé en copropriété
Environnement : pôle santé, parking, espaces verts, accès PMR
Espace lumineux et fonctionnel
Idéal pour profession médicale ou paramédicale
Conditions locatives :
Loyer : 920 ¤ charges comprises
Dépôt de garantie : 1840 ¤
Honoraires d'agence à la charge du preneur : 1656 ¤ TTC
Disponibilité : début avril
Une belle opportunité pour installer votre activité dans un cadre professionnel agréable.
N'hésitez pas à nous contacter pour une éventuelle visite.
Investissement locatif
Ce bien peut être proposé dans le cadre du déficit foncier, le montant des travaux de rénovation estimé est de 13 500€ ( estimation de 500€/m2 basée sur une moyenne de référence donnée par architecteo ) qui représente 1 467% du prix de vente.
Le loyer moyen pour ce bien est estimé à 352€ ( Estimation donnée à titre indicatif pour un bien en zone A estimé à 13.04€ / m2 )
Le loyer moyen pour ce bien est estimé à 352€ ( Estimation donnée à titre indicatif pour un bien en zone A estimé à 13.04€ / m2 )
* Montant des mensualités de crédit calculé sans apports sur une durée de ans avec un taux de %, cette estimation est non-contractuelle. Un crédit vous engage et doit être remboursé. Vérifiez vos capacités de remboursement avant de vous engager» (art. L 311-5 al. 6 du CC)
