EXCLUSIVITÉ ! LE TOURNE- LANGOIRAN- LOCAUX D'ACTIVITÉS NEUFS DE 1.130M² SUR UNE PARCELLE DE 14.200M² AVEC PARKING GOUDRONNÉ + PROGRAMME IMMOBILIER A CONSTRUIRE !

1 400 000€ *A partir de 6 501 €/mois.
33550 - Lestiac sur Garonne
Ref : 725
Informations générales
- ref : 725
- Honoraires à la charge du vendeur
- Surface habitable : 14 200 m2
- Surface carrez : 14 200 m2
- Accessible aux handicapés
- Interphone
Descriptif
EXCLUSIVITÉ ! LE TOURNE- LANGOIRAN- LOCAUX D'ACTIVITÉS NEUFS DE 1.130M² SUR UNE PARCELLE DE 14.200M² AVEC PARKING GOUDRONNÉ et PROGRAMME IMMOBILIER DE 900M² A CONSTRUIRE !
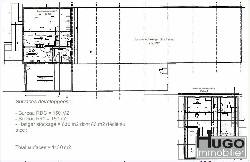
Proche de Bordeaux sur la commune du TOURNE et idéalement situé à coté de le route départementale N°10 donnant accès à la Rocade Bordelaise, venez découvrir ces locaux d'activités rénovés intégralement en 2024 et composés d'un bâtiment avec R+1 partiel de 1130 m² de surfaces développées (bureaux = 300m², sanitaires, hangars = 750m², stockage = 80m²), parfaitement équipé et entièrement aux normes.
A seulement quelques kilomètres de l'Autoroute A62, vous disposez également d'un grand parking goudronné de 4.000 m² et d'un terrain-parking d'environ 6.000m² empierré, avec un accès poids lourds.
Les locaux achevés en 2024 sont isolés double peau murs et plafonds, sous système de vidéo surveillance et alarme, climatisation, portes sectionnelles fer 4x4m, sol béton ...
Vous bénéficiez de bureaux, de parkings et d'un hangar de 42m X 14m et/ou 20m avec une hauteur sous plafond max de 7 mètres, donnant la possibilité de créer toutes activités sportives, industrielles ou commerciales ...
Possibilité de construire un programme immobilier en R+2 de 7 logements avec garages, d'une superficie totale de 900m²...
IDÉAL UTILISATEUR DIRECT OU INVESTISSEUR !!!
TRÈS BON EMPLACEMENT !
HUGO IMMOBILIER ET ASSOCIES
Hugo COLOMBIER Tel: O6.16.34.32.92.
Investissement locatif
Ce bien peut être proposé dans le cadre du déficit foncier, le montant des travaux de rénovation estimé est de 7 100 000€ ( estimation de 500€/m2 basée sur une moyenne de référence donnée par architecteo ) qui représente 507% du prix de vente.
Le loyer moyen pour ce bien est estimé à 149 242€ ( Estimation donnée à titre indicatif pour un bien en zone B1 estimé à 10.51€ / m2 )
Le loyer moyen pour ce bien est estimé à 149 242€ ( Estimation donnée à titre indicatif pour un bien en zone B1 estimé à 10.51€ / m2 )
* Montant des mensualités de crédit calculé sans apports sur une durée de 20 ans avec un taux de 1.1%, cette estimation est non-contractuelle. Un crédit vous engage et doit être remboursé. Vérifiez vos capacités de remboursement avant de vous engager» (art. L 311-5 al. 6 du CC)
