GÎTES, RESTAURANT, ÉPICERIE FINE, PISCINE COUVERTE

630 000€ *A partir de 2 926 €/mois.
33 Pièces
9 Parking
32150 - Cazaubon
Ref : 11476DQ612
Informations générales
- ref : 11476DQ612
- Honoraires à la charge du vendeur
- Nombre de pièces :33
- Nombre de parking :9
- Surface habitable : 850 m2
- Taxe foncière : 8 058 €
- Vente des murs
- Vente du fond de commerce
- Activité : Restaurant
- Nombre d'étage : 1
- DPE : 200 kWh/m2
- Type de chauffage : mixte
- Date de rénovation : 2022
- Accessible aux handicapés
- Piscine
- téléphone
- Cave
- Climatisation
- Terrasse
- Dépendance
Descriptif
Dans station thermale réputée du Gers, ancien hôtel-restaurant rénové récemment avec piscine couverte chauffée , terrasses, gîtes, restaurant , épicerie fine.
Établissement doté d'un emplacement unique sur la station thermale disposant d'un parc arboré, paysagé et clôturé ainsi que d'un parking privatif pour sa clientèle avec la possibilité d'en créer un autre à proximité.
Cet ancien hôtel-restaurant, comprenant 4 gîtes, seuls deux gîtes sont actuellement exploités.( classé 4 étoiles)
Le bâtiment se compose de la façon suivante:
Au rez-de-chaussée, hall d'entrée deux gîtes accessibles handicapé, 5 chambres avec salle d'eau, une salle de restaurant pouvant accueillir une trentaine de couverts, une cuisine entièrement rénovée récemment, un espace de vente pour l'épicerie fine donnant sur une terrasse pouvant accueillir une vingtaine de couverts.
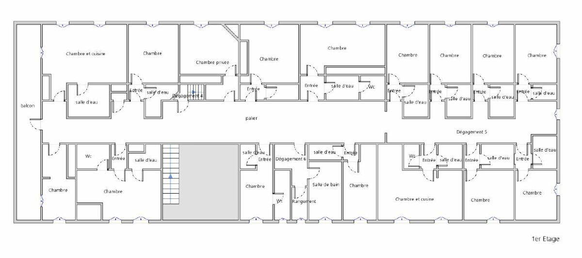
L'étage abrite , deux gîtes, 12 chambres avec salle d'eau, et une chambre privée.
Les combles disposent d'un appartement en partie rénové avec salle d'eau et WC, l'espace restant environ 300 m2 au sol pouvant être réhabilité en fonction de votre projet.
Au rez-de-jardin: une arrière-cuisine, une lingerie, une cave, une chambre froide, une chaufferie.
INFORMATIONS DIVERSES:
Tout-à-l'égout, les chambres, la salle de restauration et les gîtes sont entièrement climatisés.
Présence d'une pompe à chaleur récente pour le chauffage et la production d'eau chaude.
Ouverture 9 mos par an, pas de salarié à reprendre.
Ticket moyen 30 /35 E
Les informations sur les risques auxquels ce bien est exposé sont disponibles sur le site Géorisques : www. georisques. gouv. fr.
Agent commercial indépendant du réseau national Clairimmo RSAC : 495 108 755
Agent commercial indépendant du réseau national Clairimmo RSAC : 495 108 755
Investissement locatif
Ce bien peut être proposé dans le cadre du déficit foncier, le montant des travaux de rénovation estimé est de 425 000€ ( estimation de 500€/m2 basée sur une moyenne de référence donnée par architecteo ) qui représente 67% du prix de vente.
Le loyer moyen pour ce bien est estimé à 7 761€ ( Estimation donnée à titre indicatif pour un bien en zone C estimé à 9.13€ / m2 )
Le loyer moyen pour ce bien est estimé à 7 761€ ( Estimation donnée à titre indicatif pour un bien en zone C estimé à 9.13€ / m2 )
DPE - GES
DPE
GES
Les informations sur les risques auxquels ce bien est exposé sont disponibles sur le site Géorisques : www.georisques.gouv.fr
Montant estimé des dépenses annuelles d'énergie pour un usage standard : de 9521€ a 18000€ par an. Prix moyens des énergies indexés sur l'année 2019 (abonnements compris)
* Montant des mensualités de crédit calculé sans apports sur une durée de 20 ans avec un taux de 1.1%, cette estimation est non-contractuelle. Un crédit vous engage et doit être remboursé. Vérifiez vos capacités de remboursement avant de vous engager» (art. L 311-5 al. 6 du CC)
