Studio Croix Rousse

110 000€ *A partir de 511 €/mois.
1 Pièces
69004 - Lyon 4eme
Ref : GIGODOTSTUDIO-GMRIMMO
Informations générales
- ref : GIGODOTSTUDIO-GMRIMMO
- Honoraires à la charge du vendeur
- Nombre de pièces :1
- Nombre de wc :1
- Nombre de salle d eau :1
- Surface habitable : 19 m2
- Surface carrez : 19 m2
- Charges mensuelles : 16 €
- Type de cuisine : coin cuisine
- Type de chauffage : individuel electrique
- Année de construction : 1900
- Orientation : E
Descriptif
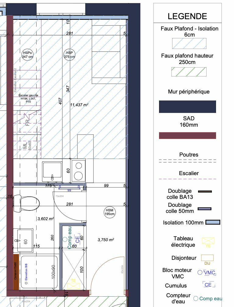
Studio - Croix-Rousse - 18,53 m² Carrez (27,57 m² au sol)
Situé sur le plateau de la Croix-Rousse, en rez-de-chaussée sur rue large, studio lumineux d'une surface de 18,53 m² Carrez et 27,57 m² de surface totale.
Description
Le bien comprend :
- Une entrée avec rangement
- Un séjour avec coin cuisine d'environ 12 m² et escalier en bois menant à
- Une mezzanine existante à usage de couchage avec placard
- Une salle d'eau à aménager
Très belle hauteur sous plafond.
Le studio dispose d'une grande fenêtre en double vitrage, apportant une belle luminosité naturelle.
La copropriété bénéficie d'une terrasse intérieure commune.
État et travaux
Vendu en plateau :
- Isolation réalisée
- Escalier installé
- Réseaux d'eau et d'électricité en attente (installés pour faciliter l'aménagement)
- Interrupteurs en place
Travaux à prévoir :
- Installation de la cuisine
- Création de la salle d'eau (sanitaires, faïence)
- Pose des sols
- Peinture (couche de finition)
Enveloppe travaux estimative : 20 000 à 25 000 € (devis artisans).
Informations complémentaires
- DPE : C
- Taxe foncière estimée : 270 € (issue d'une division de lot)
- Faibles charges de copropriété
Bien adapté à un premier achat ou à un investissement locatif, avec potentiel d'optimisation après travaux.
Honoraires à la charge du vendeur. Dans une copropriété de 20 lots. Aucune procédure n'est en cours. Non soumis au DPE. Les informations sur les risques auxquels ce bien est exposé sont disponibles sur le site Géorisques : georisques.gouv.fr.
Investissement locatif
Ce bien peut être proposé dans le cadre du déficit foncier, le montant des travaux de rénovation estimé est de 9 390€ ( estimation de 500€/m2 basée sur une moyenne de référence donnée par architecteo ) qui représente 9% du prix de vente.
* Montant des mensualités de crédit calculé sans apports sur une durée de 20 ans avec un taux de 1.1%, cette estimation est non-contractuelle. Un crédit vous engage et doit être remboursé. Vérifiez vos capacités de remboursement avant de vous engager» (art. L 311-5 al. 6 du CC)
