Studio avec terrasse – Rue Alphonse Karr, Nice – Opportunité d’investissement à saisir !

138 000€ *A partir de 641 €/mois.
1 Pièces
06000 - Nice
Ref : DBIMMO.FR-ML-A-00503
Informations générales
- ref : DBIMMO.FR-ML-A-00503
- Honoraires à la charge du vendeur
- Nombre de pièces :1
- Nombre de wc :1
- Nombre de salle de bains :1
- Nombre de salle d eau :1
- Surface habitable : 16 m2
- Surface carrez : 16 m2
- Etage : 2
- Orientation : S
- Climatisation
- Ascenseur
- Balcon
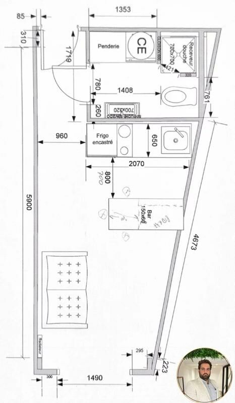
Descriptif
NICE ALPHONSE KARR IDEAL INVESTISSEMENT LOCATIF
Situé en plein cœur de Nice, rue Alphonse Karr, ce studio de 17 m² dispose d'une agréable terrasse de 7 m² et représente un excellent projet d'investissement locatif.
L'appartement est composé d'une salle d'eau avec WC, d'une cuisine américaine et d'un espace séjour ouvrant sur la terrasse.
Une mise aux goûts du jour est à prévoir pour optimiser l'attractivité et la rentabilité du bien. Parfait pour les investisseurs recherchant un emplacement stratégique en plein centre de Nice.
Les parties communes ont été entièrement refaites récemment. Faible charges comprenant le chauffage collectif. ? Pour plus d'informations sur ce bien ou organiser un rendez-vous, contactez Mathieu LANTOINE au +33770424317 ou par email sur mathieu@mdbimmo.fr. ?
Investissement locatif
Ce bien peut être proposé dans le cadre du déficit foncier, le montant des travaux de rénovation estimé est de 8 000€ ( estimation de 500€/m2 basée sur une moyenne de référence donnée par architecteo ) qui représente 6% du prix de vente.
Le loyer moyen pour ce bien est estimé à 209€ ( Estimation donnée à titre indicatif pour un bien en zone A estimé à 13.04€ / m2 )
Le loyer moyen pour ce bien est estimé à 209€ ( Estimation donnée à titre indicatif pour un bien en zone A estimé à 13.04€ / m2 )
Superficies des pièces
- balcon : 6.54 m²
* Montant des mensualités de crédit calculé sans apports sur une durée de 20 ans avec un taux de 1.1%, cette estimation est non-contractuelle. Un crédit vous engage et doit être remboursé. Vérifiez vos capacités de remboursement avant de vous engager» (art. L 311-5 al. 6 du CC)
