BORDEAUX PLACE SAINT-SEURIN - PROCHE DES COMMERCES ET TRANSPORTS- LOGEMENT TYPE 2 VIDE ET A RENOVER !

235 000€ *A partir de 1 091 €/mois.
2 Pièces
1 Chambres
33000 - Bordeaux
Ref : 926
Informations générales
- ref : 926
- Honoraires à la charge du vendeur
- Nombre de pièces :2
- Nombre de wc :1
- Nombre de salle d eau :1
- Nombre de chambres :1
- Surface habitable : 45 m2
- Surface carrez : 45 m2
- Etage : 1
- Nombre d'étage : 3
- GES : 32kgCO2/m2
- DPE : 332 kWh/m2
- Type de cuisine : séparée
- Type de chauffage : individuel
Descriptif
BORDEAUX PLACE SAINT-SEURIN - PROCHE DES COMMERCES ET DES TRANSPORTS- APPARTEMENT TYPE 2 DE 45M² LIBRE ET A RÉNOVER !
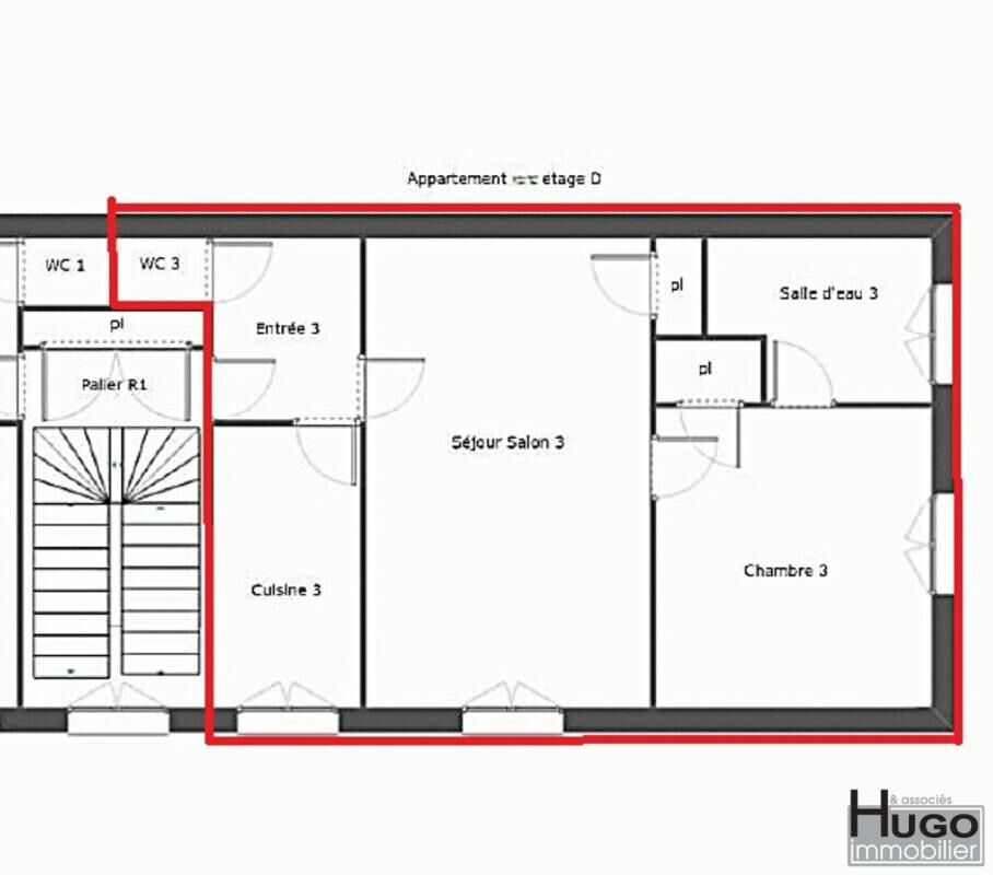
Notre agence vous propose à deux pas de la place Saint-Seurin, proche des commerces et des transports, au sein d'un immeuble des années 60 en cours rénovation (façade, parties communes, toiture...), ce logement situé au 1er étage en angle composé d'une entrée avec placard, d'une cuisine et toilettes séparées, d'un grand séjour, d'une chambre avec salle d'eau et placards, l'ensemble baigné de lumière !
Le vendeur prend en charge un programme complet de travaux majeurs, garantissant pérennité du bâti, confort d'usage et valorisation patrimoniale immédiate pour un investissement serein :
1/ Une façade entièrement rénovée.
2/ Des parties communes remises à neuf .
3/ Une toiture sécurisée et pérenne.
Plusieurs logements sont libres, disponibles à la vente et nécessitent des travaux de rénovation !
Possibilités d'acquérir des garages en complément du prix de vente !
SPÉCIAL INVESTISSEUR AVEC DÉFICIT FONCIER OU PRIMO-ACCÉDANT !!!
HUGO IMMOBILIER et ASSOCIES.
Hugo COLOMBIER Tel: O6.16.34.32.92.
Copropriété de 12 lots - dont 6 lots habitation.
Les informations sur les risques auxquels ce bien est exposé sont disponibles sur le site Géorisques : www. georisques. gouv. fr
Investissement locatif
Ce bien peut être proposé dans le cadre du déficit foncier, le montant des travaux de rénovation estimé est de 22 500€ ( estimation de 500€/m2 basée sur une moyenne de référence donnée par architecteo ) qui représente 10% du prix de vente.
Le loyer moyen pour ce bien est estimé à 473€ ( Estimation donnée à titre indicatif pour un bien en zone B1 estimé à 10.51€ / m2 )
Le loyer moyen pour ce bien est estimé à 473€ ( Estimation donnée à titre indicatif pour un bien en zone B1 estimé à 10.51€ / m2 )
DPE - GES
DPE
GES
Les informations sur les risques auxquels ce bien est exposé sont disponibles sur le site Géorisques : www.georisques.gouv.fr
Logement à consommation énergétique excessive
* Montant des mensualités de crédit calculé sans apports sur une durée de 20 ans avec un taux de 1.1%, cette estimation est non-contractuelle. Un crédit vous engage et doit être remboursé. Vérifiez vos capacités de remboursement avant de vous engager» (art. L 311-5 al. 6 du CC)
