CARPIQUET - Appartement F2 Neuf en rez-de-jardin

187 900€ *A partir de 873 €/mois.
2 Pièces
1 Chambres
14650 - Carpiquet
Ref : PB2372
Informations générales
- ref : PB2372
- Honoraires à la charge du vendeur
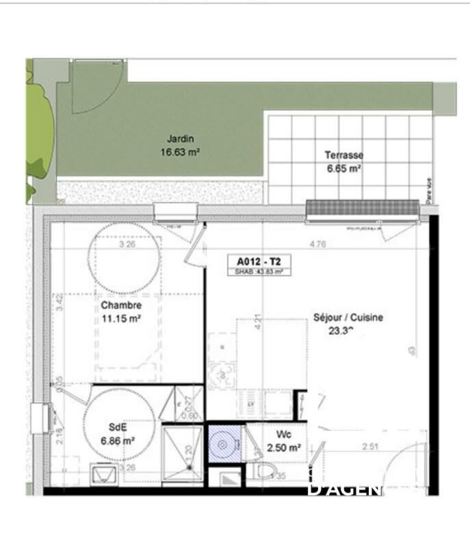
- Nombre de pièces :2
- Nombre de wc :1
- Nombre de salle d eau :1
- Nombre de chambres :1
- Surface habitable : 43 m2
- Surface carrez : 43 m2
- Nombre d'étage : 2
- Type de cuisine : américaine
- Type de chauffage : individuel electrique
- Année de construction : 2026
- Ascenseur
- Interphone
Descriptif
Nous avons le plaisir de vous proposer un appartement F2 neuf dans une résidence de standing située dans le bourg de Carpiquet, à proximité des commerces, écoles et transports.
Idéal pour un premier achat, un pied à terre ou un investissement locatif, il se compose de :
- une pièce vie lumineuse
- un espace cuisine fonctionnel
- une chambre confortable
- une salle d'eau soignée
- WC
Vous profiterez d''une agréable terrasse prolongée par un terrain privatif et d'une place de stationnement sous-sol sécurisé.
L'appartement sera disponible en décembre 2026 ; frais de notaires réduits (2,5 % au lieu de 8%), éligible PTZ, garanties décennales, normes de performances énergétiques RE2020.
Cette annonce a été rédigée par Patricia BUTET EI agent commercial RSAC CAEN 913 675 328
Conformément à la réglementation Tracfin une pièce d'identité sera demandée pour toute visite.
Les informations sur les risques auxquels ce bien est exposé sont disponibles sur le site Géorisques : www.georisques.gouv.fr
(5.00 % honoraires TTC à la charge de l'acquéreur.)
Patricia BUTET (EI) Agent Commercial - Numéro RSAC : 913675328 - CAEN.
Investissement locatif
Ce bien peut être proposé dans le cadre du déficit foncier, le montant des travaux de rénovation estimé est de 21 500€ ( estimation de 500€/m2 basée sur une moyenne de référence donnée par architecteo ) qui représente 11% du prix de vente.
Le loyer moyen pour ce bien est estimé à 452€ ( Estimation donnée à titre indicatif pour un bien en zone B1 estimé à 10.51€ / m2 )
Le loyer moyen pour ce bien est estimé à 452€ ( Estimation donnée à titre indicatif pour un bien en zone B1 estimé à 10.51€ / m2 )
* Montant des mensualités de crédit calculé sans apports sur une durée de 20 ans avec un taux de 1.1%, cette estimation est non-contractuelle. Un crédit vous engage et doit être remboursé. Vérifiez vos capacités de remboursement avant de vous engager» (art. L 311-5 al. 6 du CC)
