
162 000€ dont INF% TTC d'honoraires charge acquéreur
*A partir de 752 €/mois.
*A partir de 752 €/mois.
2 Pièces
1 Chambres
33270 - Floirac
Ref : 371
Informations générales
- ref : 371
- Honoraires de : 0 % à la charge de l'acquéreur
- Nombre de pièces :2
- Nombre de wc :1
- Nombre de salle d eau :1
- Nombre de chambres :1
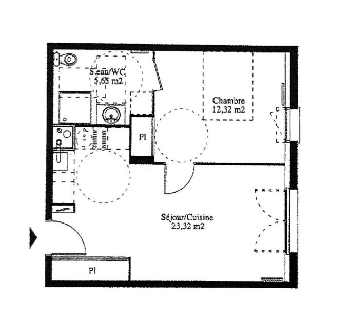
- Surface habitable : 42 m2
- Surface carrez : 42 m2
- Etage : 3
- Nombre d'étage : 4
- GES : 16kgCO2/m2
- DPE : 91 kWh/m2
- Type de cuisine : coin cuisine
- Type de chauffage : individuel gaz
- Année de construction : 2012
- Accessible aux handicapés
- Ascenseur
Descriptif
Dans la résidence calme et parfaitement entretenue Les Terrasses de Flore, découvrez ce charmant appartement T2 situé au 3e étage, offrant un cadre de vie serein et agréable.
L'appartement se compose d'une entrée avec rangement, d'un séjour lumineux et cuisinette ouverte (non équipée), d'une chambre avec placard intégré, ainsi que d'une salle d'eau avec douche et WC.
Vous bénéficierez également d'une place de parking extérieure privative au sein de la résidence sécurisée.
Idéalement situé, le bien profite d'un environnement paisible tout en étant à proximité immédiate des transports (bus H et 24), des pistes cyclables et de plusieurs espaces verts et parcs, offrant un cadre de vie pratique et verdoyant.
DPE C/C. Honoraires charge Acquéreur 12000EUR soit net vendeur 150 000EUR - Les informations sur les risques auxquels ce bien est exposé sont disponibles sur le site Géorisques : www.georisques.gouv.fr 1
Investissement locatif
Ce bien peut être proposé dans le cadre du déficit foncier, le montant des travaux de rénovation estimé est de 21 000€ ( estimation de 500€/m2 basée sur une moyenne de référence donnée par architecteo ) qui représente 13% du prix de vente.
Le loyer moyen pour ce bien est estimé à 441€ ( Estimation donnée à titre indicatif pour un bien en zone B1 estimé à 10.51€ / m2 )
Le loyer moyen pour ce bien est estimé à 441€ ( Estimation donnée à titre indicatif pour un bien en zone B1 estimé à 10.51€ / m2 )
DPE - GES
DPE
GES
Les informations sur les risques auxquels ce bien est exposé sont disponibles sur le site Géorisques : www.georisques.gouv.fr
Montant estimé des dépenses annuelles d'énergie pour un usage standard : de 440€ a 650€ par an. Prix moyens des énergies indexés sur l'année 2021 (abonnements compris)
* Montant des mensualités de crédit calculé sans apports sur une durée de 20 ans avec un taux de 1.1%, cette estimation est non-contractuelle. Un crédit vous engage et doit être remboursé. Vérifiez vos capacités de remboursement avant de vous engager» (art. L 311-5 al. 6 du CC)
