Studio A RENOVER 25m² à VALS LES BAINS

35 000€ *A partir de 163 €/mois.
2 Pièces
07600 - Vals les Bains
Ref : 1800-APP-VALS
Informations générales
- ref : 1800-APP-VALS
- Honoraires à la charge du vendeur
- Nombre de pièces :2
- Nombre de wc :1
- Nombre de salle d eau :1
- Surface habitable : 25 m2
- Etage : 1
- Nombre d'étage : 3
- Type de cuisine : aucune
- Eau
- Electricité
- tout à l'égout
Descriptif
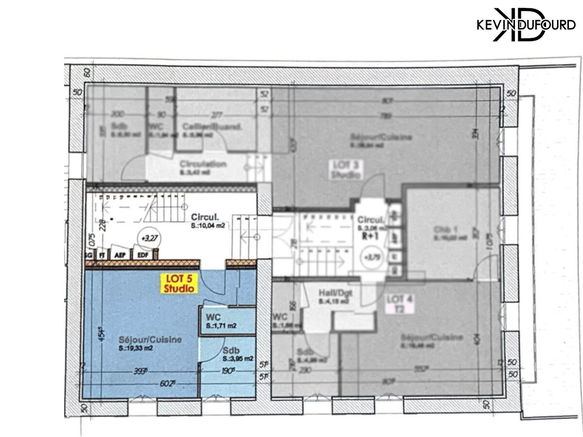
Kévin DUFOURD MarketPlace Immobilier vous propose un studio A RENOVER entièrement d'environ 25m² habitable au centre-ville de VALS LES BAINS.
L'appartement au 1er étage, est composé d'un séjour de 20m², une salle d'eau et un WC.
Il est proche de toutes les commodités que peut offrir la commune de VALS LES BAINS, idéal pour premier achat ou pour investisseur.
Je reste à votre disposition pour visiter et découvrir ce bien.
Le bien comprend 1 lot et il est situé dans une copropriété de 19 lots (les charges courantes annuelles moyennes de copropriété sont de 500 € et le syndicat des copropriétaires ne fait pas l'objet d'une procédure citée à l'article L. 721-1 du code de la construction et de l'habitation).
Investissement locatif
Le loyer moyen pour ce bien est estimé à 228€ ( Estimation donnée à titre indicatif pour un bien en zone C estimé à 9.13€ / m2 )
DPE - GES


Les informations sur les risques auxquels ce bien est exposé sont disponibles sur le site Géorisques : www.georisques.gouv.fr
* Montant des mensualités de crédit calculé sans apports sur une durée de 20 ans avec un taux de 1.1%, cette estimation est non-contractuelle. Un crédit vous engage et doit être remboursé. Vérifiez vos capacités de remboursement avant de vous engager» (art. L 311-5 al. 6 du CC)