BORDEAUX SAINT GENES - PLATEAU DE 105 M² A RENOVER AVEC TROPEZIENNE A CREER

230 000€ *A partir de 1 068 €/mois.
3 Pièces
33000 - Bordeaux
Ref : 724
Informations générales
- ref : 724
- Honoraires à la charge du vendeur
- Nombre de pièces :3
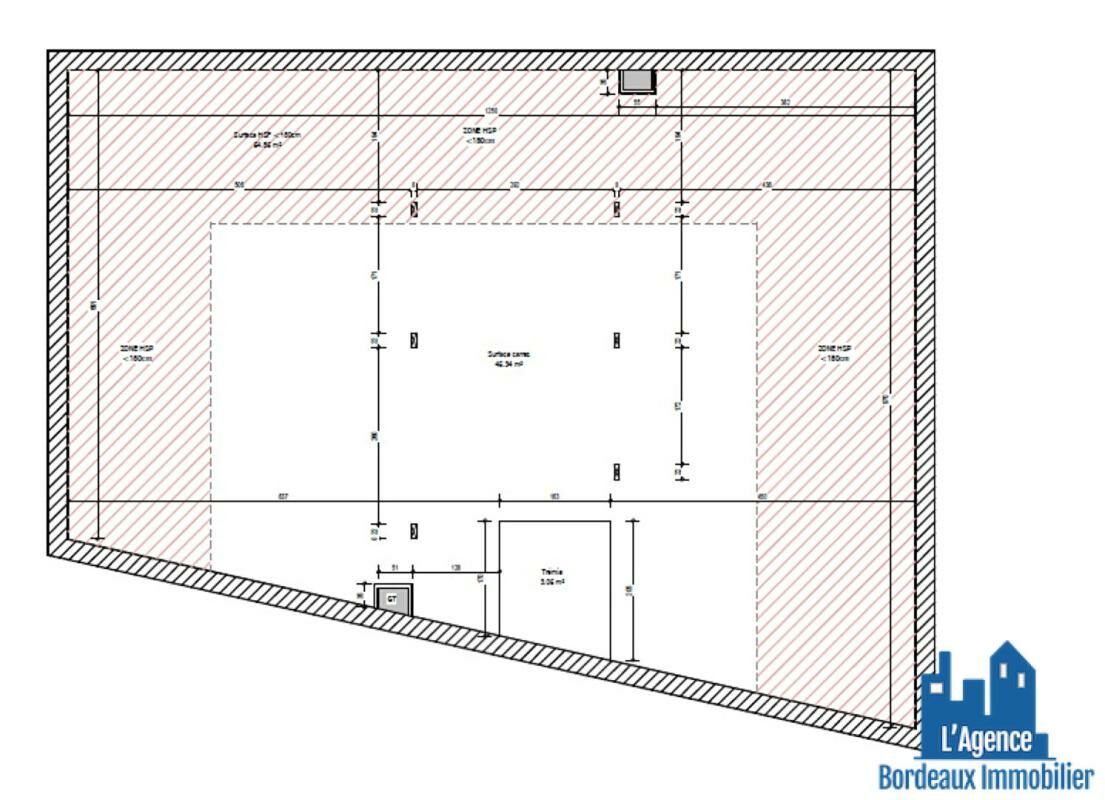
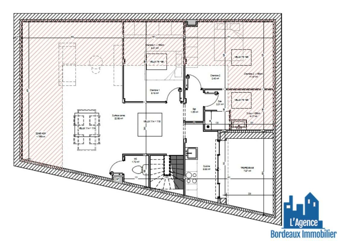
- Surface habitable : 105 m2
- Surface carrez : 105 m2
- Etage : 2
- Nombre d'étage : 2
- GES : 5kgCO2/m2
- DPE : 164 kWh/m2
Descriptif
BORDEAUX SAINT GENES - PLATEAU DE 105 M² A RÉNOVER AVEC TROPÉZIENNE A CRÉER...
L'AGENCE BORDEAUX IMMOBILIER vous propose en plein coeur du quartier Saint Genès, ce plateau d'environ 105 m² au sol dont 66m² en Loi Carrez, à rénover entièrement avec possibilité de créer un logement T3 avec une terrasse tropézienne.
Situé dans un très bel immeuble en pierre, l'accès à l'appartement se fait par le 1er étage, une entrée privative dessert un escalier qui mène au 2ème étage composé d'un plateau à rénover.
La façade et les parties communes ont été rénovées et la toiture remaniée.
Arrêt de Tramway: Bergonié à 5 min à pied.
L'AGENCE BORDEAUX IMMOBILIER
Hugo COLOMBIER Tel: O6.16.34.32.92.
Copropriété de 6 lots - dont 6 lots habitation.
Investissement locatif
Ce bien peut être proposé dans le cadre du déficit foncier, le montant des travaux de rénovation estimé est de 52 500€ ( estimation de 500€/m2 basée sur une moyenne de référence donnée par architecteo ) qui représente 23% du prix de vente.
Le loyer moyen pour ce bien est estimé à 1 104€ ( Estimation donnée à titre indicatif pour un bien en zone B1 estimé à 10.51€ / m2 )
Le loyer moyen pour ce bien est estimé à 1 104€ ( Estimation donnée à titre indicatif pour un bien en zone B1 estimé à 10.51€ / m2 )
DPE - GES
DPE
GES
Les informations sur les risques auxquels ce bien est exposé sont disponibles sur le site Géorisques : www.georisques.gouv.fr
* Montant des mensualités de crédit calculé sans apports sur une durée de 20 ans avec un taux de 1.1%, cette estimation est non-contractuelle. Un crédit vous engage et doit être remboursé. Vérifiez vos capacités de remboursement avant de vous engager» (art. L 311-5 al. 6 du CC)
