
247 000€ *A partir de 1 147 €/mois.
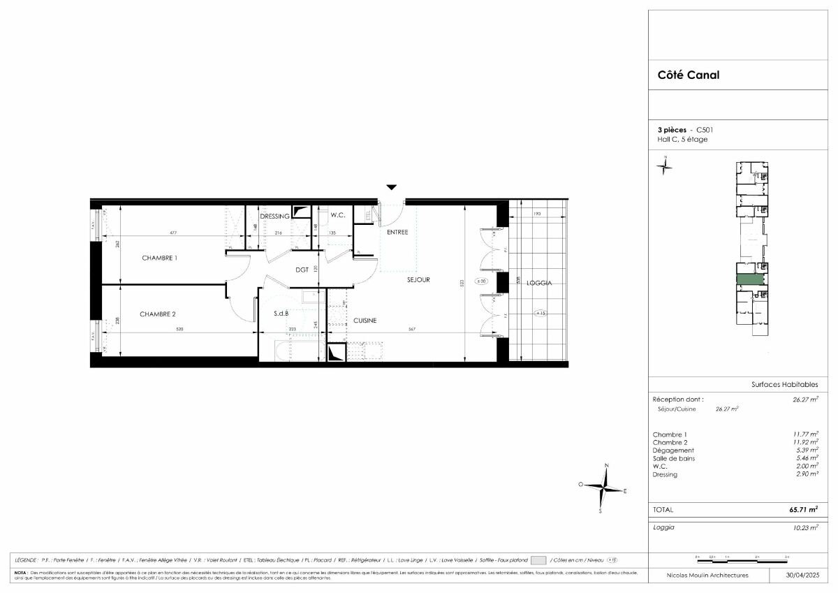
3 Pièces
2 Chambres
51100 - Reims
Ref : 1274
Informations générales
- ref : 1274
- Honoraires à la charge du vendeur
- Nombre de pièces :3
- Nombre de wc :1
- Nombre de salle de bains :1
- Nombre de chambres :2
- Surface habitable : 66 m2
- Etage : 5
- Type de cuisine : américaine
- Année de construction : 2028
Descriptif
Appartement moderne à Reims avec terrasse spacieuse Découvrez ce charmant appartement de 65,71 m² situé dans le quartier prisé de Côté Canal à Reims. Ce bien comprend deux chambres confortables et une pièce de vie lumineuse, idéale pour accueillir famille et amis. La cuisine moderne est pleinement équipée, offrant un espace fonctionnel pour cuisiner. L'appartement dispose d'une vaste terrasse de 10,23 m², parfaite pour profiter des beaux jours tout en admirant la vue dégagée sur la ville. La résidence est entourée de commodités telles que commerces, écoles et espaces de loisirs, facilitant votre quotidien et rendant ce bien encore plus attractif. Offert à un prix compétitif de 247 000 euros, cet appartement est un investissement idéal pour des revenus fonciers. La livraison est prévue pour le deuxième trimestre 2028, vous laissant le temps de planifier votre projet immobilier. Ne manquez pas cette occasion unique d'acquérir un appartement moderne dans un cadre dynamique.
Investissement locatif
Ce bien peut être proposé dans le cadre du déficit foncier, le montant des travaux de rénovation estimé est de 32 855€ ( estimation de 500€/m2 basée sur une moyenne de référence donnée par architecteo ) qui représente 13% du prix de vente.
Le loyer moyen pour ce bien est estimé à 691€ ( Estimation donnée à titre indicatif pour un bien en zone B1 estimé à 10.51€ / m2 )
Le loyer moyen pour ce bien est estimé à 691€ ( Estimation donnée à titre indicatif pour un bien en zone B1 estimé à 10.51€ / m2 )
* Montant des mensualités de crédit calculé sans apports sur une durée de 20 ans avec un taux de 1.1%, cette estimation est non-contractuelle. Un crédit vous engage et doit être remboursé. Vérifiez vos capacités de remboursement avant de vous engager» (art. L 311-5 al. 6 du CC)
