
549 400€ dont INF% TTC d'honoraires charge acquéreur
*A partir de 2 551 €/mois.
*A partir de 2 551 €/mois.
4 Pièces
3 Chambres
17570 - La palmyre
Ref : A32
Informations générales
- ref : A32
- Honoraires de : 0 % à la charge de l'acquéreur
- Nombre de pièces :4
- Nombre de wc :2
- Nombre de salle d eau :2
- Nombre de chambres :3
- Surface habitable : 96 m2
- Surface carrez : 96 m2
- Charges mensuelles : 130 €
- Etage : 3
- GES : 1kgCO2/m2
- DPE : 53 kWh/m2
- Type de cuisine : aucune
- Année de construction : 2025
- Ascenseur
- Terrasse
Descriptif
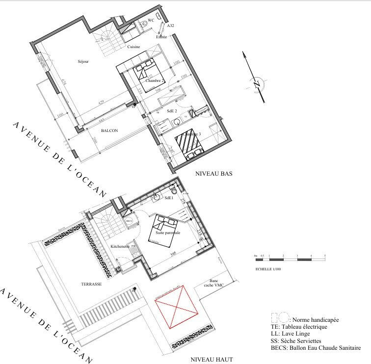
Appartement duplex 4 pièces 95,69 m2 La Palmyre centre Terrasse et Roof Top 50 m2
Au 3e et dernier étage d'une résidence de standing avec ascenseur, au coeur de La Palmyre, découvrez ce duplex de type 4 aux normes RT2012 offrant confort, luminosité et espace extérieur privilégié.
Description du bien :
Rez-de-chaussée :
Entrée donnant sur un séjour avec cuisine américaine
Deux chambres avec placard, dont une donnant sur un balcon
Salle d'eau et WC séparé
Terrasse accessible depuis le séjour
a l'étage :
Chambre parentale avec placard et salle d'eau avec WC
Coin cuisine donnant sur le roof top de plus de 50 m2
Prestations et confort :
Cave et parking privatifs en sous-sol
Duplex lumineux avec espaces extérieurs généreux
Idéal en résidence principale ou secondaire
Bien proposé par l'agence LEMAITRE IMMOBILIER.Copropriété de 83 lots dont 20 principaux.
. Charges annuelles payées par le propriétaire 1556.68euros
Honoraires inclus à la charge de l'acquéreur : 18 579 EUR TTC (prix hors honoraires : 530 821 EUR).
Les informations sur les risques auxquels ce bien est exposé sont disponibles sur le site Géorisques : www.georisques.gouv.fr
Situé dans la station balnéaire de La Palmyre, vous profiterez de ses plages, du zoo de la Palmyre, de la forêt de Coubre et de toutes les commodités à proximité. 1
Investissement locatif
Ce bien peut être proposé dans le cadre du déficit foncier, le montant des travaux de rénovation estimé est de 47 845€ ( estimation de 500€/m2 basée sur une moyenne de référence donnée par architecteo ) qui représente 9% du prix de vente.
Le loyer moyen pour ce bien est estimé à 874€ ( Estimation donnée à titre indicatif pour un bien en zone B2 estimé à 9.13€ / m2 )
Le loyer moyen pour ce bien est estimé à 874€ ( Estimation donnée à titre indicatif pour un bien en zone B2 estimé à 9.13€ / m2 )
Superficies des pièces
- balcon : 16 m²
DPE - GES
DPE
GES
Les informations sur les risques auxquels ce bien est exposé sont disponibles sur le site Géorisques : www.georisques.gouv.fr
* Montant des mensualités de crédit calculé sans apports sur une durée de 20 ans avec un taux de 1.1%, cette estimation est non-contractuelle. Un crédit vous engage et doit être remboursé. Vérifiez vos capacités de remboursement avant de vous engager» (art. L 311-5 al. 6 du CC)
