Maison de ville atypique rénovée - Secteur Charteux / Proximité métro

375 000€ *A partir de 1 741 €/mois.
4 Pièces
3 Chambres
1 Parking
13004 - Marseille 4eme
Ref : 11837DT911
Informations générales
- ref : 11837DT911
- Honoraires à la charge du vendeur
- Nombre de pièces :4
- Nombre de wc :2
- Nombre de salle d eau :2
- Nombre de chambres :3
- Nombre de parking :1
- Nombre de box :1
- Surface habitable : 97 m2
- Surface carrez : 81 m2
- Taxe foncière : 1 473 €
- Etage : 2
- Nombre d'étage : 2
- GES : 24kgCO2/m2
- DPE : 130 kWh/m2
- Type de cuisine : américaine
- Type de chauffage : radiateur
- Date de rénovation : 2022
- Année de construction : 1910
- Exposition séjour : S
- Eau
- Gaz
- Electricité
- téléphone
- tout à l'égout
- Double vitrage
- Interphone
- Bien mitoyen
Descriptif
Clairimmo vous invite à découvrir cette maison de ville idéalement située dans le quartier des Charteux, à deux pas du métro.
Entièrement rénovée avec des prestations de qualité, cette maison de 97.35m² de surface habitable allie confort moderne et fonctionnalité : toiture refaite, double vitrage, matériaux soignés, et un DPE classé C.
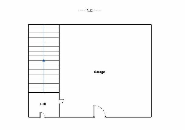
Au rez-de-chaussée, vous trouverez un vaste espace de 56 m², polyvalent, pouvant faire office de garage (jusqu'à 3 véhicules) ou de local commercial grâce à la présence de l'électricité, d'un point d'eau et de toilettes.
Une place de stationnement est également disponible devant la maison.
Au 1er étage, la pièce de vie lumineuse accueille un coin cuisine, une chambre confortable, une salle d'eau ainsi qu'un WC indépendant.
Un élégant escalier en marbre vous mène au dernier niveau, composé de deux chambres avec rangements, et d'une seconde salle d'eau avec WC.
Agent commercial indépendant du réseau national Clairimmo RSAC : 837493618
Agent commercial indépendant du réseau national Clairimmo RSAC : 837493618
Investissement locatif
Ce bien peut être proposé dans le cadre du déficit foncier, le montant des travaux de rénovation estimé est de 40 565€ ( estimation de 500€/m2 basée sur une moyenne de référence donnée par architecteo ) qui représente 11% du prix de vente.
Le loyer moyen pour ce bien est estimé à 1 058€ ( Estimation donnée à titre indicatif pour un bien en zone A estimé à 13.04€ / m2 )
Le loyer moyen pour ce bien est estimé à 1 058€ ( Estimation donnée à titre indicatif pour un bien en zone A estimé à 13.04€ / m2 )
DPE - GES
DPE
GES
Les informations sur les risques auxquels ce bien est exposé sont disponibles sur le site Géorisques : www.georisques.gouv.fr
Montant estimé des dépenses annuelles d'énergie pour un usage standard : de 1260€ a 1760€ par an. Prix moyens des énergies indexés sur l'année 2023 (abonnements compris)
* Montant des mensualités de crédit calculé sans apports sur une durée de 20 ans avec un taux de 1.1%, cette estimation est non-contractuelle. Un crédit vous engage et doit être remboursé. Vérifiez vos capacités de remboursement avant de vous engager» (art. L 311-5 al. 6 du CC)