BORDEAUX- COEUR CHARTRONS- LOFT OU BUREAU 110m² + PARKING SUR LES QUAIS !

560 000€ *A partir de 2 600 €/mois.
33000 - Bordeaux
Ref : 828
Informations générales
- ref : 828
- Honoraires à la charge du vendeur
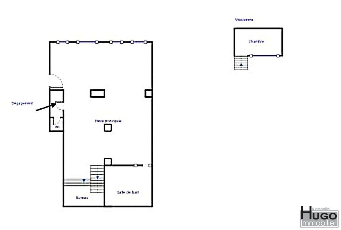
- Surface habitable : 110 m2
- Surface carrez : 110 m2
- GES : 41kgCO2/m2
- DPE : 203 kWh/m2
Descriptif
BORDEAUX- COEUR CHARTRONS- LOFT OU BUREAU 110m² + PARKING SUR LES QUAIS !
Situé au coeur du quartier recherché des Chartrons, à deux pas de la rue Notre-Dame et de la place Picard, ce loft / bureau de 110 m² Loi Carrez en rez-de-chaussée prend place dans un ancien lieu festif et offre un cachet unique.
Ce bien de plain-pied séduit par ses beaux volumes, sa belle hauteur sous plafond et son mélange réussi entre pierre apparente, style industriel et lignes contemporaines.
La vaste pièce de vie, baignée de lumière grâce à de grandes ouvertures, accueille un séjour convivial avec salle à manger et cuisine ouverte aménagée et équipée. Une cheminée à l'éthanol suspendue structure l'espace et apporte caractère et chaleur.
Le bien dispose de deux chambres (ou 2 bureaux), dont une en mezzanine, idéale pour un espace nuit cosy. Les matériaux choisis renforcent l'atmosphère du lieu : parquet massif, menuiseries métalliques et aménagements sur mesure.
Implanté dans un quartier vivant et commerçant, ce loft bénéficie d'un emplacement privilégié, offrant un mode de vie tout à pied : écoles, commerces, espaces culturels, restaurants et terrasses à proximité immédiate.
Un bien rare, au charme affirmé, parfait pour les amateurs de lieux atypiques et / ou la réception de votre clientèle...
Un emplacement de parking situé dans un garage privé sur les quais des Chartrons à 300m, complète cet ensemble !
Contactez-nous pour plus d'informations ou pour organiser une visite.
HUGO IMMOBILIER et ASSOCIES.
Hugo COLOMBIER Tel: O6.16.34.32.92.
Copropriété de 4 lots.
Charges annuelles : 1200 euros.
Les informations sur les risques auxquels ce bien est exposé sont disponibles sur le site Géorisques : www. georisques. gouv. fr
Investissement locatif
Ce bien peut être proposé dans le cadre du déficit foncier, le montant des travaux de rénovation estimé est de 55 000€ ( estimation de 500€/m2 basée sur une moyenne de référence donnée par architecteo ) qui représente 10% du prix de vente.
Le loyer moyen pour ce bien est estimé à 1 156€ ( Estimation donnée à titre indicatif pour un bien en zone B1 estimé à 10.51€ / m2 )
Le loyer moyen pour ce bien est estimé à 1 156€ ( Estimation donnée à titre indicatif pour un bien en zone B1 estimé à 10.51€ / m2 )
DPE - GES
DPE
GES
Les informations sur les risques auxquels ce bien est exposé sont disponibles sur le site Géorisques : www.georisques.gouv.fr
* Montant des mensualités de crédit calculé sans apports sur une durée de 20 ans avec un taux de 1.1%, cette estimation est non-contractuelle. Un crédit vous engage et doit être remboursé. Vérifiez vos capacités de remboursement avant de vous engager» (art. L 311-5 al. 6 du CC)
