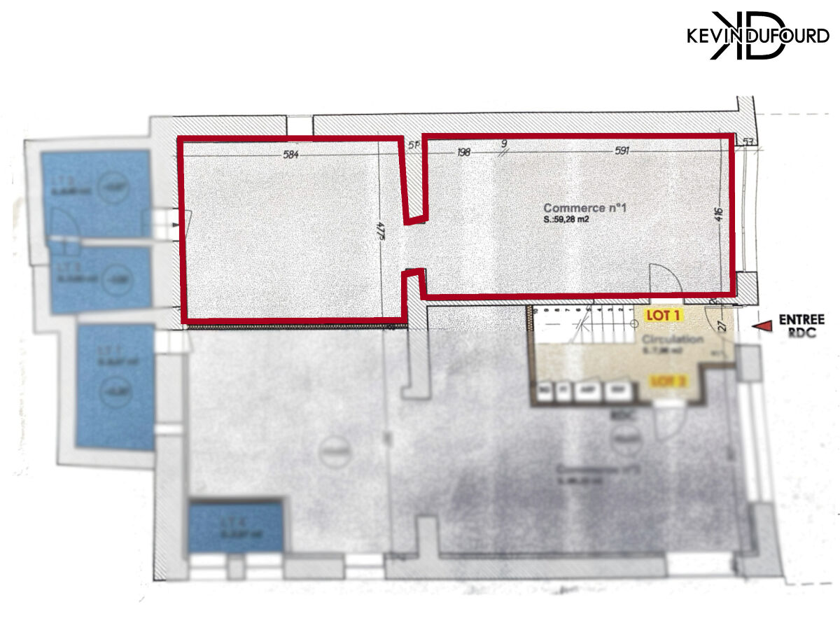
LOCAL COMMERCIAL de 59M2 à VALS LES BAINS

65 000€ *A partir de 302 €/mois.
2 Pièces
07600 - Vals les Bains
Ref : 1796-LOC VALS
Informations générales
- ref : 1796-LOC VALS
- Honoraires à la charge du vendeur
- Nombre de pièces :2
- Surface habitable : 59 m2
- Type de cuisine : aucune
- Accessible aux handicapés
- Eau
- Electricité
- tout à l'égout
Descriptif
Kévin DUFOURD MarketPlaceImmobilier vous propose un Local commercial A RENOVER d'environ 59m² en plein coeur de VALS LES BAINS.
Ce bien réunit tous les critères que vous pouvez attendre d'un local commercial avec grande vitrine, un parking à proximité, en face du parc de VALS LES BAINS
Je reste à votre disposition pour visiter et découvrir ce bien.
Le bien comprend 1 lot, et il est situé dans une copropriété de 19 lots (les charges courantes annuelles moyennes de copropriété sont de 500€ et le syndicat des copropriétaires ne fait pas l'objet d'une procédure citée à l'article L. 721-1 du code de la construction et de l'habitation).
Investissement locatif
Le loyer moyen pour ce bien est estimé à 539€ ( Estimation donnée à titre indicatif pour un bien en zone C estimé à 9.13€ / m2 )
* Montant des mensualités de crédit calculé sans apports sur une durée de 20 ans avec un taux de 1.1%, cette estimation est non-contractuelle. Un crédit vous engage et doit être remboursé. Vérifiez vos capacités de remboursement avant de vous engager» (art. L 311-5 al. 6 du CC)
