IMMEUBLE 3 APPARTEMENTS CENTRE VILLE

130 000€ *A partir de 604 €/mois.
7 Pièces
30130 - Pont Saint Esprit
Ref : 85671931X
Informations générales
- ref : 85671931X
- Honoraires à la charge du vendeur
- Nombre de pièces :7
- Surface habitable : 140 m2
- Surface carrez : 140 m2
- Nombre d'étage : 3
- GES : 10kgCO2/m2
- DPE : 311 kWh/m2
- Type de cuisine : aucune
- Type de chauffage : individuel electrique radiateur
- Année de construction : 1948
- Orientation : E
- Terrasse
Descriptif
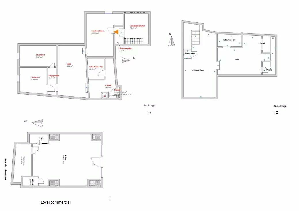
IMMEUBLE 3 APPARTEMENTS CENTRE VILLE REF 3684LB : Pont-Saint-Esprit Ensemble immobilier avec une belle rentabilité en centre ville proche des parking en angle de rue, idéal investisseur, à proximité du parking de la bourse Composé de 3 lots avec des entrées indépendantes, compteur d'eau et électrique individuel - au 1er étage : 1 T3 d'environ 78m² au sol (presque 63m² loi carrez) - au 2ème étage : 1 T2 d'environ 72m² au sol (Prévoir de légers travaux). Presque 45m² loi carrez. Une terrasse commune et un local technique leur sont attribués. - au RDC : Un local commercial d'environ 30m² Revenu locatif brut potentiel : 18000euros soit une rentabilité de plus de 11% après quelques travaux énergétiques. Immeuble de rapport à venir visiter sans tarder, idéal investisseur souhaitant avoir une petite enveloppe travaux à déduire. Plan non contractuel Petite copropriété de 5 lots Aucune charge de copropriété Pas de procédure en cours
Investissement locatif
Ce bien peut être proposé dans le cadre du déficit foncier, le montant des travaux de rénovation estimé est de 70 000€ ( estimation de 500€/m2 basée sur une moyenne de référence donnée par architecteo ) qui représente 54% du prix de vente.
Le loyer moyen pour ce bien est estimé à 1 278€ ( Estimation donnée à titre indicatif pour un bien en zone C estimé à 9.13€ / m2 )
Le loyer moyen pour ce bien est estimé à 1 278€ ( Estimation donnée à titre indicatif pour un bien en zone C estimé à 9.13€ / m2 )
DPE - GES
DPE
GES
Les informations sur les risques auxquels ce bien est exposé sont disponibles sur le site Géorisques : www.georisques.gouv.fr
* Montant des mensualités de crédit calculé sans apports sur une durée de 20 ans avec un taux de 1.1%, cette estimation est non-contractuelle. Un crédit vous engage et doit être remboursé. Vérifiez vos capacités de remboursement avant de vous engager» (art. L 311-5 al. 6 du CC)
