ANCIENNE FERME GASCONNE DE 340 M2 AVEC DÉPENDANCES

450 000€ *A partir de 2 090 €/mois.
12 Pièces
4 Chambres
4 Parking
32150 - Cazaubon
Ref : 11085DQ612
Visite virtuelle
Informations générales
- ref : 11085DQ612
- Honoraires à la charge du vendeur
- Nombre de pièces :12
- Nombre de wc :3
- Nombre de salle de bains :2
- Nombre de salle d eau :1
- Nombre de chambres :4
- Nombre de parking :4
- Nombre de box :2
- Surface habitable : 340 m2
- Surface terrain : 12 665 m2
- Taxe foncière : 3 106 €
- Nombre d'étage : 1
- GES : 4kgCO2/m2
- DPE : 135 kWh/m2
- Type de cuisine : séparée équipée
- Type de chauffage : Pompe à chaleur
- Date de rénovation : 2015
- Année de construction : 1850
- Type de construction : Pierres
- Type de couverture : Tuiles
- Exposition séjour : S
- Piscine
- Alarme
- Eau
- Electricité
- téléphone
- fosse septique
- Double vitrage
- Cheminée
- Jardin arboré
- Terrasse
- Dépendance
Descriptif
Charmante ferme gasconne entièrement rénovée de 340 m² habitables avec une dépendance de 175 m² aménageables, le tout sur un vaste terrain de 12 665 m².
Nichée au bout d'un chemin tranquille, cette propriété offre la sérénité de la campagne gersoise, tout en étant à seulement 3 minutes des commerces et services locaux.
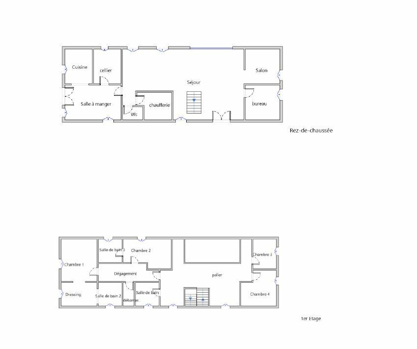
Cette magnifique bâtisse en pierre, avec ses 360 m² habitables, se compose de la façon suivante :
Au rez-de-chaussée d'un spacieux salon lumineux de 112.30 m² déplafonné doté d'un poêle à bois, une salle à manger de 32 m² agrémentée d'une cuisinière à bois, d'un bureau de 13.24 m2, d'un WC séparé avec lave-mains, d'un cellier d'une buanderie et d'une cuisine séparée de 9.06 m2
À l'étage, abrite une mezzanine de 50 m², vous découvrirez deux charmantes chambres mansardées, une salle de bain de 6,64 m², une chambre de 18.99 m² avec salle de bain privative de 8 m2 et WC, ainsi qu'une suite parentale de 36.97 m2 dotée d'un dressing de et d'une salle d'eau avec WC.
L'espace à l'étage, chaleureux et convivial, est stylé par sa charpente apparente, ses murs en pierre et son parquet.
Rénovée récemment, il y a moins de 10 ans, la maison est équipée , d'un chauffage par le sol, de fenêtres à double vitrage, de murs épais et d'une bonne isolation, garantissant d'excellents diagnostics énergétiques classés C et A.
Vous n'aurez aucun travaux à réaliser : il vous suffira de poser vos valises !
La dépendance de 175 m², qui possède un caractère gascon et rustique, constitue un atout supplémentaire. Avec son nouveau toit et une surface avantageuse.
Cette belle propriété dispose également d'un abri voiture pouvant accueillir 3 véhicules, de deux pergolas , ajoutant encore à ses nombreuses qualités.
Son cadre verdoyant et naturel, sans vis-à-vis, contribue à une qualité de vie exceptionnelle.
Ne manquez pas cette belle opportunité !
INFORMATIONS DIVERSES: présence d'une fosse septique, arrosage automatique, production d'eau chaude 2 cumulus électrique.
Appentis métallique de 92.54 m2
.Les informations sur les risques auxquels ce bien est exposé sont disponibles sur le site Géorisques : www. georisques. gouv. fr.
Agent commercial indépendant du réseau national Clairimmo RSAC : 495 108 755
Agent commercial indépendant du réseau national Clairimmo RSAC : 495 108 755
Investissement locatif
Ce bien peut être proposé dans le cadre du déficit foncier, le montant des travaux de rénovation estimé est de 170 000€ ( estimation de 500€/m2 basée sur une moyenne de référence donnée par architecteo ) qui représente 38% du prix de vente.
Le loyer moyen pour ce bien est estimé à 3 104€ ( Estimation donnée à titre indicatif pour un bien en zone C estimé à 9.13€ / m2 )
Le loyer moyen pour ce bien est estimé à 3 104€ ( Estimation donnée à titre indicatif pour un bien en zone C estimé à 9.13€ / m2 )
DPE - GES
DPE
GES
Les informations sur les risques auxquels ce bien est exposé sont disponibles sur le site Géorisques : www.georisques.gouv.fr
Montant estimé des dépenses annuelles d'énergie pour un usage standard : de 2270€ a 3130€ par an. Prix moyens des énergies indexés sur l'année 2021 (abonnements compris)
* Montant des mensualités de crédit calculé sans apports sur une durée de 20 ans avec un taux de 1.1%, cette estimation est non-contractuelle. Un crédit vous engage et doit être remboursé. Vérifiez vos capacités de remboursement avant de vous engager» (art. L 311-5 al. 6 du CC)
