GONNEVILLE SUR HONFLEUR - VILLA 12 PIECES DE 460 M² habitables

1 239 000€ *A partir de 5 754 €/mois.
12 Pièces
7 Chambres
14600 - Honfleur
Ref : NDR2459
Informations générales
- ref : NDR2459
- Honoraires à la charge du vendeur
- Nombre de pièces :12
- Nombre de wc :4
- Nombre de salle d eau :5
- Nombre de chambres :7
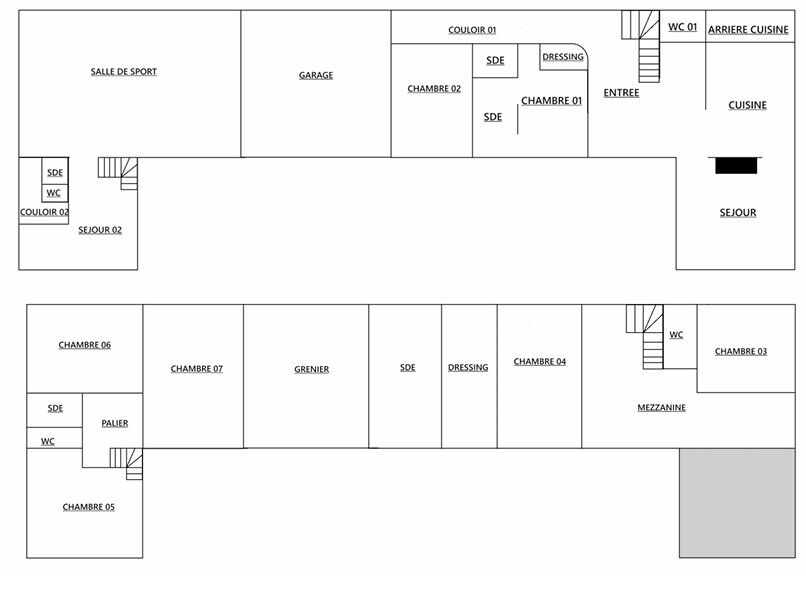
- Surface habitable : 460 m2
- Surface carrez : 460 m2
- Surface terrain : 4 700 m2
- GES : 2kgCO2/m2
- DPE : 61 kWh/m2
- Type de cuisine : américaine
- Type de chauffage : individuel
- Année de construction : 1900
- Cheminée
- Interphone
Descriptif
Nous avons le plaisir de vous proposer entre Deauville et Honfleur, une ancienne fromagerie du XIXe siècle entièrement réhabilitée avec goût et des matériaux haut de gamme.
La VILLA d'environ 460 m² habitable dispose de deux espaces distincts, la première partie se compose d'une pièce de vie cathédrale très lumineuse (avec insert bois), une cuisine haut de gamme avec un plan de travail en DEKTON et en QUARTZ, trois suites parentales, 1 bureau, double garage et salle de sport qui donne sur la deuxième partie avec un grand séjour avec sa cuisine ouverte, deux salles d'eau et trois chambres.
Rénovation complète ? DPE A (pompe à chaleur + panneaux solaires).
Avec ses dimensions exceptionnelles, cette maison est Idéale pour une grande famille ou des amateurs de belles demeures au calme, à quelques minutes en voiture de la mer.
Terrain (piscinable) d'environ 4 700 m² et grande terrasse exposée SUD.
Pour tous renseignements complémentaires, Contactez moi
Conformément à la réglementation Tracfin une pièce d'identité sera demandée pour toute visite.
Les informations sur les risques auxquels ce bien est exposé sont disponibles sur le site Géorisques : www.georisques.gouv.fr
Drouet Nicolas (EI) - Agent commercial - Numéro Rsac 899 623 904 - Lisieux
(1.81 % honoraires TTC à la charge de l'acquéreur.)
Nicolas DROUET (EI) Agent Commercial - Numéro RSAC : 899 623 904 - LISIEUX.
Investissement locatif
Ce bien peut être proposé dans le cadre du déficit foncier, le montant des travaux de rénovation estimé est de 230 000€ ( estimation de 500€/m2 basée sur une moyenne de référence donnée par architecteo ) qui représente 19% du prix de vente.
Le loyer moyen pour ce bien est estimé à 4 835€ ( Estimation donnée à titre indicatif pour un bien en zone B1 estimé à 10.51€ / m2 )
Le loyer moyen pour ce bien est estimé à 4 835€ ( Estimation donnée à titre indicatif pour un bien en zone B1 estimé à 10.51€ / m2 )
DPE - GES
DPE
GES
Les informations sur les risques auxquels ce bien est exposé sont disponibles sur le site Géorisques : www.georisques.gouv.fr
* Montant des mensualités de crédit calculé sans apports sur une durée de 20 ans avec un taux de 1.1%, cette estimation est non-contractuelle. Un crédit vous engage et doit être remboursé. Vérifiez vos capacités de remboursement avant de vous engager» (art. L 311-5 al. 6 du CC)
