MAISON DE VILLE DE TYPE 3 D'UNE SUPERFICIE HABITABLE DE 87 M2 AVEC GARAGE

72 000€ *A partir de 334 €/mois.
3 Pièces
2 Chambres
32150 - Cazaubon
Ref : 11808DQ612
Informations générales
- ref : 11808DQ612
- Honoraires à la charge du vendeur
- Nombre de pièces :3
- Nombre de wc :2
- Nombre de salle d eau :1
- Nombre de chambres :2
- Nombre de box :1
- Surface habitable : 87 m2
- Surface terrain : 58 m2
- Taxe foncière : 830 €
- Nombre d'étage : 2
- GES : 8kgCO2/m2
- DPE : 249 kWh/m2
- Type de cuisine : américaine
- Type de chauffage : electrique radiateur
- Type de couverture : Tuiles
- Eau
- Electricité
- téléphone
- tout à l'égout
- Double vitrage
- Bien mitoyen
Descriptif
Maison de ville située dans le cœur historique du village , pas de gros travaux à prévoir, idéal pour un premier achat ou investissement locatif.
Rendement Brut avec un loyer de 550 E / 8.3%
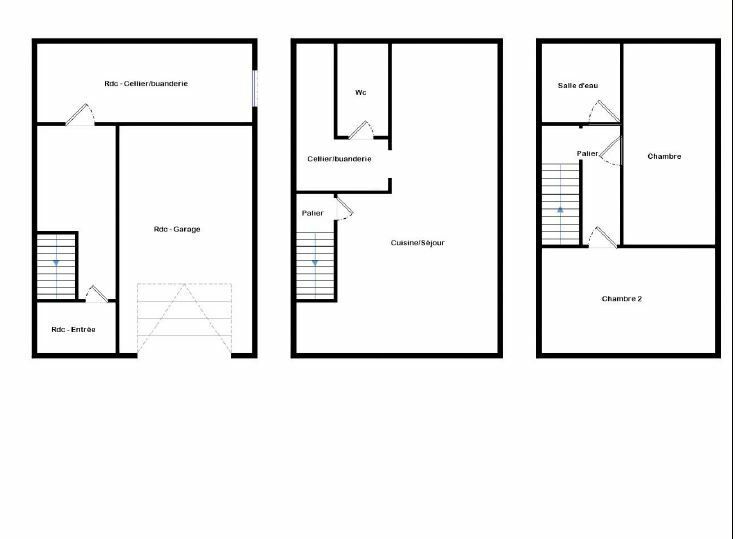
Au rez-de-chaussée, vous trouverez une entrée de 4,99 m² menant à un escalier qui accède à l'espace de vie, ainsi qu'un garage de 19,10 m² avec un accès direct à un cellier de 13,69 m².
Au 1er étage, l'agencement comprend : un palier de 1,19 m², une cuisine ouverte de 7,41 m² non équipée, un salon spacieux de 22,88 m², une buanderie de 2,89 m² et des toilettes séparées.
Le 2ème étage se compose de : une salle d'eau de 3,74 m² avec toilettes, une chambre de 9,50 m² avec dressing, une seconde chambre de 10,99 m², et un dégagement de 2,73 m².
INFORMATIONS DIVERSES:
Double vitrage, tout-à-l'égout, radiateurs électriques, production d'eau chaude par cumulus électrique.
TAXE FONCIERE: 830 E
Les informations sur les risques auxquels ce bien est exposé sont disponibles sur le site Géorisques : www. georisques. gouv. fr.
Agent commercial indépendant du réseau national Clairimmo RSAC : 495 108 755
Agent commercial indépendant du réseau national Clairimmo RSAC : 495 108 755
Investissement locatif
Ce bien peut être proposé dans le cadre du déficit foncier, le montant des travaux de rénovation estimé est de 43 500€ ( estimation de 500€/m2 basée sur une moyenne de référence donnée par architecteo ) qui représente 60% du prix de vente.
Le loyer moyen pour ce bien est estimé à 794€ ( Estimation donnée à titre indicatif pour un bien en zone C estimé à 9.13€ / m2 )
Le loyer moyen pour ce bien est estimé à 794€ ( Estimation donnée à titre indicatif pour un bien en zone C estimé à 9.13€ / m2 )
DPE - GES
DPE
GES
Les informations sur les risques auxquels ce bien est exposé sont disponibles sur le site Géorisques : www.georisques.gouv.fr
Montant estimé des dépenses annuelles d'énergie pour un usage standard : de 1670€ a 2300€ par an. Prix moyens des énergies indexés sur l'année 2021 (abonnements compris)
* Montant des mensualités de crédit calculé sans apports sur une durée de 20 ans avec un taux de 1.1%, cette estimation est non-contractuelle. Un crédit vous engage et doit être remboursé. Vérifiez vos capacités de remboursement avant de vous engager» (art. L 311-5 al. 6 du CC)
