
930 000€ dont INF% TTC d'honoraires charge acquéreur
*A partir de 4 319 €/mois.
*A partir de 4 319 €/mois.
4 Pièces
3 Chambres
92140 - Clamart
Ref : 190210-ACTIF
Informations générales
- ref : 190210-ACTIF
- Honoraires de : 0 % à la charge de l'acquéreur
- Nombre de pièces :4
- Nombre de wc :2
- Nombre de salle d eau :3
- Nombre de chambres :3
- Surface habitable : 108 m2
- Surface carrez : 108 m2
- Surface terrain : 150 m2
- Nombre d'étage : 1
- Type de cuisine : américaine
- Année de construction : 2025
- Balcon
Descriptif
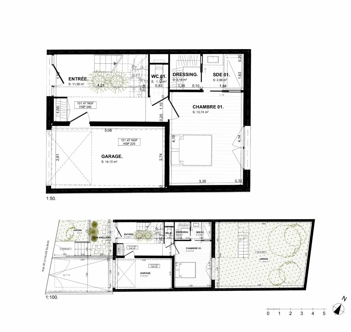
Votre agence Actifimmo a le privilège de vous proposer à la vente, dans le quartier calme et pavillonnaire de Schneider, cette propriété de 108m² habitables, édifiée sur un terrain de 150 m².
Elle se compose au rez-de-chaussée, d'une entrée, une chambre donnant sur le jardin de 52m², un dressing, une salle d'eau, wc, et un garage de 14m². ( +1 place ext)
Au premier étage: un séjour de 33m² donnant sur un balcon de 6m², et une cuisine ouverte.
Au second: 2 chambres de 13m², 2 salles d'eau et un wc.
Honoraires : 3,33% à la charge des acquéreurs
frais de notaire réduit
Les informations sur les risques auxquels ce bien est exposé sont disponibles sur le site Géorisques : www.georisques.gouv.fr
Honoraires inclus de 3.33% TTC à la charge de l'acquéreur. Prix hors honoraires 900 000 €. Non soumis au DPE. Les informations sur les risques auxquels ce bien est exposé sont disponibles sur le site Géorisques : georisques.gouv.fr.
Investissement locatif
Ce bien peut être proposé dans le cadre du déficit foncier, le montant des travaux de rénovation estimé est de 54 000€ ( estimation de 500€/m2 basée sur une moyenne de référence donnée par architecteo ) qui représente 6% du prix de vente.
Le loyer moyen pour ce bien est estimé à 1 895€ ( Estimation donnée à titre indicatif pour un bien en zone Ab estimé à 17.55€ / m2 )
Le loyer moyen pour ce bien est estimé à 1 895€ ( Estimation donnée à titre indicatif pour un bien en zone Ab estimé à 17.55€ / m2 )
Superficies des pièces
- balcon : 7 m²
* Montant des mensualités de crédit calculé sans apports sur une durée de 20 ans avec un taux de 1.1%, cette estimation est non-contractuelle. Un crédit vous engage et doit être remboursé. Vérifiez vos capacités de remboursement avant de vous engager» (art. L 311-5 al. 6 du CC)
