
257 000€ *A partir de 1 193 €/mois.
4 Pièces
3 Chambres
11100 - Narbonne
Ref : maca2361
Informations générales
- ref : maca2361
- Honoraires à la charge du vendeur
- Nombre de pièces :4
- Nombre de wc :2
- Nombre de salle de bains :1
- Nombre de chambres :3
- Surface habitable : 92 m2
- Surface carrez : 92 m2
- Nombre d'étage : 2
- GES : 2kgCO2/m2
- DPE : 67 kWh/m2
- Type de cuisine : coin cuisine équipé
- Type de chauffage : individuel
- Année de construction : 2019
- Orientation : E
- Climatisation
- Terrasse
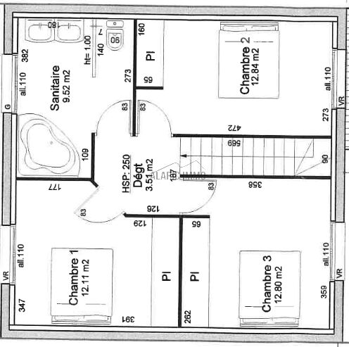
Descriptif
Alaric Immo vous propose à Narbonne, dans un agréable quartier pavillonnaire à 5 minutes du centre-ville et à 700m de la rocade, cette maison récente de 92 m2 habitables, parfaitement entretenue et offrant tout le confort moderne.
Devant la maison, donnant sur l'allée, vous avez une première terrasse de 44m2.
Au rez-de-chaussée, vous découvrirez un lumineux séjour-cuisine de 35 m2 ouvrant sur une seconde terrasse/jardin intime de 43 m2, idéale pour profiter des beaux jours. Une buanderie et un WC complètent ce niveau.
a l'étage, trois chambres confortables (12, 13 et 13 m2) ainsi qu'une spacieuse salle de bains équipée d'une baignoire-jacuzzi, offrent un espace nuit fonctionnel et agréable.
Taxe foncière 2025 : 1 420EUR
Prestations :
Garage de 14 m2
Climatisation réversible
Menuiseries double vitrage et volets roulants électriques
Maison récente, bien isolée et facile à vivre
Pour toute information ou visite, contactez : Marco Caramelli 06 64 33 28 09 MarcoCaramelliPro@gmail.com
1
Investissement locatif
Ce bien peut être proposé dans le cadre du déficit foncier, le montant des travaux de rénovation estimé est de 46 000€ ( estimation de 500€/m2 basée sur une moyenne de référence donnée par architecteo ) qui représente 18% du prix de vente.
Le loyer moyen pour ce bien est estimé à 840€ ( Estimation donnée à titre indicatif pour un bien en zone B2 estimé à 9.13€ / m2 )
Le loyer moyen pour ce bien est estimé à 840€ ( Estimation donnée à titre indicatif pour un bien en zone B2 estimé à 9.13€ / m2 )
DPE - GES
DPE
GES
Les informations sur les risques auxquels ce bien est exposé sont disponibles sur le site Géorisques : www.georisques.gouv.fr
Montant estimé des dépenses annuelles d'énergie pour un usage standard : de 569€ a 769€ par an. Prix moyens des énergies indexés sur l'année 2024 (abonnements compris)
* Montant des mensualités de crédit calculé sans apports sur une durée de 20 ans avec un taux de 1.1%, cette estimation est non-contractuelle. Un crédit vous engage et doit être remboursé. Vérifiez vos capacités de remboursement avant de vous engager» (art. L 311-5 al. 6 du CC)
