Maison T7 de 200 m² à Saint-Justin

299 000€ *A partir de 1 388 €/mois.
7 Pièces
6 Chambres
4 Parking
40240 - Saint Justin
Ref : 12080DQ612
Visite virtuelle
Informations générales
- ref : 12080DQ612
- Honoraires à la charge du vendeur
- Nombre de pièces :7
- Nombre de wc :2
- Nombre de salle d eau :2
- Nombre de chambres :6
- Nombre de parking :4
- Surface habitable : 200 m2
- Surface terrain : 5 478 m2
- Taxe foncière : 1 468 €
- Nombre d'étage : 1
- GES : 5kgCO2/m2
- DPE : 149 kWh/m2
- Type de cuisine : séparée
- Type de chauffage : mixte
- Année de construction : 2006
- Type de construction : Briques
- Type de couverture : Tuiles
- Piscine
- Eau
- Electricité
- téléphone
- tout à l'égout
- Forage
- Double vitrage
- Cheminée
- Jardin arboré
- Terrasse
- Dépendance
Descriptif
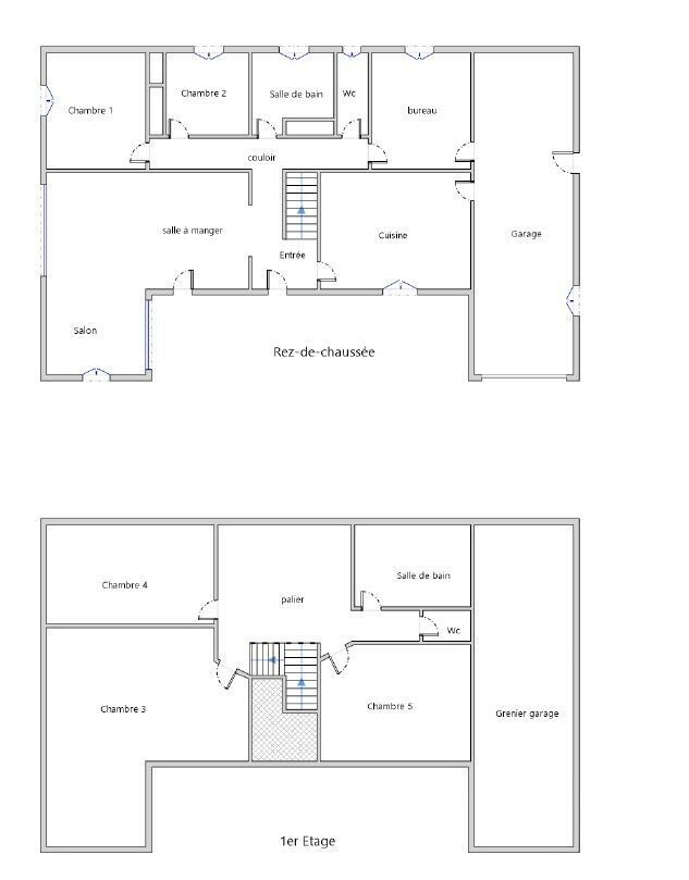
Cette maison individuelle de type T7 offre environ 200 m² habitables, répartis sur deux niveaux, avec 6 chambres et de nombreuses pièces de vie confortables.
De style landais, elle est idéalement située au calme, en bout d'impasse, au cœur d'un vaste parc arboré entièrement clôturé de 5 478 m², agrémenté d'une piscine. Une terrasse, un balcon et un stationnement extérieur viennent compléter cet ensemble.
Le rez-de-chaussée se compose d'une entrée à hauteur de plafond cathédrale, d'une cuisine séparée de 17,75 m², d'un salon-séjour lumineux de 38,86 m² équipé d'un insert, de 3 chambres dont deux avec placards muraux, d'une salle d'eau de 5,25 m² avec douche à l'italienne et double vasque, ainsi que d'un WC séparé avec lave-mains.
L'étage abrite quant à lui 3 chambres supplémentaires, une salle d'eau et un WC indépendant.
Lors des belles journées ensoleillées, vous profiterez pleinement d'une grande terrasse couverte, idéale pour les repas en famille ou entre amis.
- Taxe foncière : 1468 €
- DPE : C
- Mode de chauffage : bois et radiateurs électriques.
- Piscine maçonée avec liner contruite en 2012 traitement au sel. (6x12)
- Présence d'un caport de 31 m2
- Protail automatique.
- Production d'eau chaude cumulus électrique.
- Garage de 36.20 m2 .
- Combles accesible surface sol 34 m2 idéal pour du stockage.
- Présence d'un forage ( sans pompe)
Les informations sur les risques auxquels ce bien est exposé sont disponibles sur le site Géorisques : (http://www.georisques.gouv.fr/)
Agent commercial indépendant du réseau national Clairimmo RSAC : 495 108 755
Agent commercial indépendant du réseau national Clairimmo RSAC : 495 108 755
Investissement locatif
Ce bien peut être proposé dans le cadre du déficit foncier, le montant des travaux de rénovation estimé est de 100 000€ ( estimation de 500€/m2 basée sur une moyenne de référence donnée par architecteo ) qui représente 33% du prix de vente.
Le loyer moyen pour ce bien est estimé à 1 826€ ( Estimation donnée à titre indicatif pour un bien en zone C estimé à 9.13€ / m2 )
Le loyer moyen pour ce bien est estimé à 1 826€ ( Estimation donnée à titre indicatif pour un bien en zone C estimé à 9.13€ / m2 )
DPE - GES
DPE
GES
Les informations sur les risques auxquels ce bien est exposé sont disponibles sur le site Géorisques : www.georisques.gouv.fr
Montant estimé des dépenses annuelles d'énergie pour un usage standard : de 2110€ a 2900€ par an. Prix moyens des énergies indexés sur l'année 2021 (abonnements compris)
* Montant des mensualités de crédit calculé sans apports sur une durée de 20 ans avec un taux de 1.1%, cette estimation est non-contractuelle. Un crédit vous engage et doit être remboursé. Vérifiez vos capacités de remboursement avant de vous engager» (art. L 311-5 al. 6 du CC)
