2 terrains constructibles au calme

39 900€ *A partir de 185 €/mois.
64270 - Arancou
Ref : 314
Informations générales
- ref : 314
- Honoraires à la charge du vendeur
- Surface habitable : 908 m2
- Type de cuisine : aucune
- Jardin arboré
- Jardin cloturé
- Terrasse
Descriptif
Plus de photos, de détails et possibilité de réserver une visite sur Hellobien.
Un premier terrain à 39 900€
Sur la commune d'Arancou, venez découvrir ce terrain constructible arboré, situé au calme.
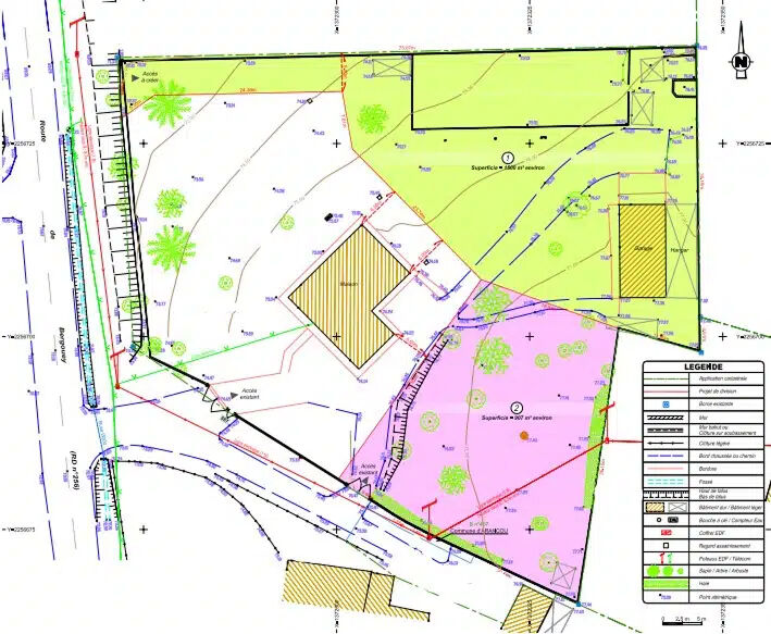
Terrain de couleur rose sur le plan, d'une superficie de 908m² à 39 900€ frais d'agence inclus.
Terrain adjacent, de couleur verte sur le plan, en vente également. Achat simultané des deux terrains possible.
Rejoignez la ville de Peyrehorade en 15 min, Bayonne en 35 min et Pau en 1h.
Un accès est déjà existant, les fluides sont en bordures du terrain, l'étude des sols a été réalisée et le permis d'aménager a été accordé.
Prévoir le raccordement à l'eau et à l'électricité pour la future construction ainsi que l'installation d'un assainissement individuel.
Secteur AC1. Eglise d'Arancou et Grotte Bourrouilla
Les terrains sont de nouveau disponibles à la vente, les acquéreurs initiaux n'ayant pu obtenir leur financement.
Un deuxième terrain constructible de 1501m² avec bâti existant de 63m² : 65 900€
Sur la commune d'Arancou, venez découvrir ce terrain constructible situé au calme, sur lequel se trouve un garage de 63m² transformable en habitation.
Terrain de couleur verte sur le plan, d?une superficie de 1501m² à 65 900€ frais d'agence inclus.
Terrain adjacent, de couleur rose sur le plan, en vente également. Achat simultané des deux terrains possible.
Rejoignez la ville de Peyrehorade en 15 min, Bayonne en 35 min et Pau en 1h.
Le bâti offre une première pièce de 49m² avec une belle hauteur sous plafond et une seconde de 14m², pour un total de 63m². Vous trouverez aussi une mezzanine. Le tout a toujours été entretenu et est donc en bon état général.
Les fluides sont en bordures du terrain, l'étude des sols a été réalisée et le permis d'aménager a été accordé.
Prévoir la création d'un chemin d'accès, le raccordement à l'eau et à l'électricité pour la future construction ainsi que l'installation d'un assainissement individuel.
Secteur AC1. Eglise d'Arancou et Grotte Bourrouilla
Les terrains sont de nouveau disponibles à la vente, les acquéreurs initiaux n'ayant pu obtenir leur financement.
Investissement locatif
Ce bien peut être proposé dans le cadre du déficit foncier, le montant des travaux de rénovation estimé est de 454 000€ ( estimation de 500€/m2 basée sur une moyenne de référence donnée par architecteo ) qui représente 1 138% du prix de vente.
Le loyer moyen pour ce bien est estimé à 8 290€ ( Estimation donnée à titre indicatif pour un bien en zone C estimé à 9.13€ / m2 )
Le loyer moyen pour ce bien est estimé à 8 290€ ( Estimation donnée à titre indicatif pour un bien en zone C estimé à 9.13€ / m2 )
* Montant des mensualités de crédit calculé sans apports sur une durée de 20 ans avec un taux de 1.1%, cette estimation est non-contractuelle. Un crédit vous engage et doit être remboursé. Vérifiez vos capacités de remboursement avant de vous engager» (art. L 311-5 al. 6 du CC)
