
95 000€ *A partir de 441 €/mois.
64420 - Soumoulou
Ref : 487
Informations générales
- ref : 487
- Honoraires à la charge du vendeur
- Surface habitable : 1 520 m2
- Surface carrez : 1 520 m2
- Surface terrain : 1 520 m2
- Type de cuisine : aucune
Descriptif
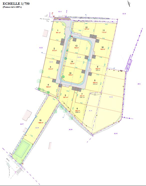
A 15 min de Pau, dans un quartier calme et verdoyant avec vue sur les Pyrénées, joli terrain de 1 520 m2 viabilisé, lot no7, proche de tous commerces et commodités. Construisez la maison de vos rêves dans ce petit lotissement de 16 lots situé entre Pau, Tarbes et Lourdes.
1
Investissement locatif
Ce bien peut être proposé dans le cadre du déficit foncier, le montant des travaux de rénovation estimé est de 760 000€ ( estimation de 500€/m2 basée sur une moyenne de référence donnée par architecteo ) qui représente 800% du prix de vente.
Le loyer moyen pour ce bien est estimé à 13 878€ ( Estimation donnée à titre indicatif pour un bien en zone C estimé à 9.13€ / m2 )
Le loyer moyen pour ce bien est estimé à 13 878€ ( Estimation donnée à titre indicatif pour un bien en zone C estimé à 9.13€ / m2 )
* Montant des mensualités de crédit calculé sans apports sur une durée de 20 ans avec un taux de 1.1%, cette estimation est non-contractuelle. Un crédit vous engage et doit être remboursé. Vérifiez vos capacités de remboursement avant de vous engager» (art. L 311-5 al. 6 du CC)
