
69 600€ dont INF% TTC d'honoraires charge acquéreur
*A partir de 323 €/mois.
*A partir de 323 €/mois.
64420 - Soumoulou
Ref : 4812
Informations générales
- ref : 4812
- Honoraires de : 0 % à la charge de l'acquéreur
- Surface habitable : 605 m2
- Surface carrez : 605 m2
- Surface terrain : 605 m2
- Type de cuisine : aucune
Descriptif
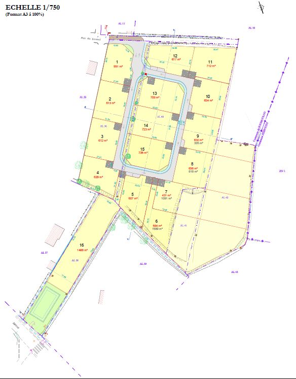
A 15 min de Pau, dans un quartier calme et verdoyant avec vue sur les Pyrénées, joli terrain de 605 m2 viabilisé, lot no12, proche de tous commerces et commodités. Construisez la maison de vos rêves dans ce petit lotissement de 16 lots situé entre Pau, Tarbes et Lourdes.
1
Investissement locatif
Ce bien peut être proposé dans le cadre du déficit foncier, le montant des travaux de rénovation estimé est de 302 500€ ( estimation de 500€/m2 basée sur une moyenne de référence donnée par architecteo ) qui représente 435% du prix de vente.
Le loyer moyen pour ce bien est estimé à 5 524€ ( Estimation donnée à titre indicatif pour un bien en zone C estimé à 9.13€ / m2 )
Le loyer moyen pour ce bien est estimé à 5 524€ ( Estimation donnée à titre indicatif pour un bien en zone C estimé à 9.13€ / m2 )
* Montant des mensualités de crédit calculé sans apports sur une durée de 20 ans avec un taux de 1.1%, cette estimation est non-contractuelle. Un crédit vous engage et doit être remboursé. Vérifiez vos capacités de remboursement avant de vous engager» (art. L 311-5 al. 6 du CC)
