
98 000€ *A partir de 455 €/mois.
64420 - Soumoulou
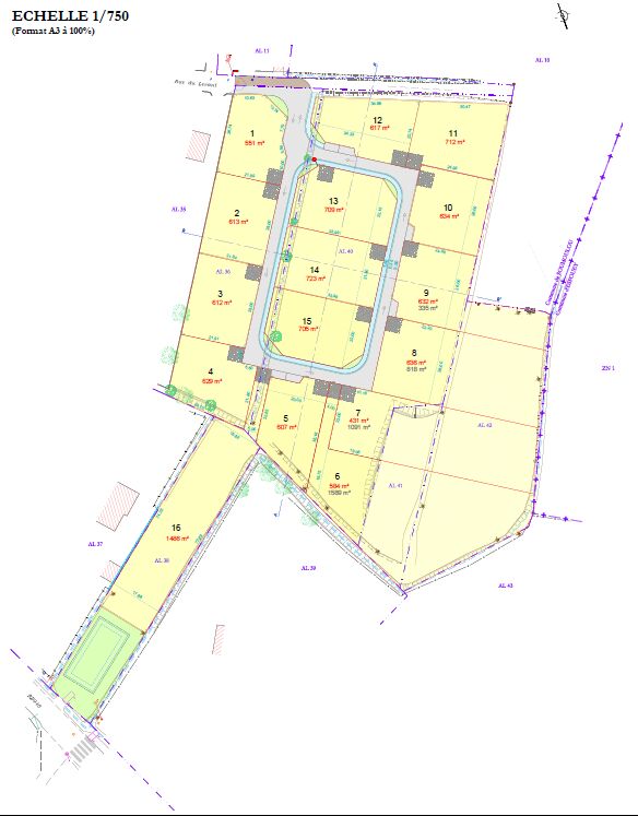
Ref : 489
Informations générales
- ref : 489
- Honoraires à la charge du vendeur
- Surface habitable : 942 m2
- Surface carrez : 942 m2
- Surface terrain : 942 m2
- Type de cuisine : aucune
Descriptif
A 15 min de Pau, dans un quartier calme et verdoyant avec vue sur les Pyrénées, joli terrain de 942 m2 viabilisé, lot no9, proche de tous commerces et commodités. Construisez la maison de vos rêves dans ce petit lotissement de 16 lots situé entre Pau, Tarbes et Lourdes.
1
Investissement locatif
Ce bien peut être proposé dans le cadre du déficit foncier, le montant des travaux de rénovation estimé est de 471 000€ ( estimation de 500€/m2 basée sur une moyenne de référence donnée par architecteo ) qui représente 481% du prix de vente.
Le loyer moyen pour ce bien est estimé à 8 600€ ( Estimation donnée à titre indicatif pour un bien en zone C estimé à 9.13€ / m2 )
Le loyer moyen pour ce bien est estimé à 8 600€ ( Estimation donnée à titre indicatif pour un bien en zone C estimé à 9.13€ / m2 )
* Montant des mensualités de crédit calculé sans apports sur une durée de 20 ans avec un taux de 1.1%, cette estimation est non-contractuelle. Un crédit vous engage et doit être remboursé. Vérifiez vos capacités de remboursement avant de vous engager» (art. L 311-5 al. 6 du CC)
